龙都·臻阅
新盘
访问人数:16063团购人数:0评论:0我要评论 |查看评论
  • 物业类别:住宅、
  • 项目区位:南阳宛城区
  • 项目特色:人文宛都 厚载城西
  • 建筑类型:高层、
  • 装修状况:毛坯
  • 项目地址:南阳市中州路与博望路交会处北500米路东
  • 交通状况
  • 投资商:南阳龙都地产
  • 交房时间:2023年9月
  • 开发商:南阳龙都地产
  • 容积率:2.49
  • 物业费
  • 绿化率:41 %
  • 总建筑面积:45000 平方米
  • 物业公司:龙都物业
  • 售楼地址:北京大道世纪星假日酒店北200米路西(天一驾校旁)
  • 预售许可证:(宛)房预售证第2021155号、054号、085号[更多楼盘预售信息>>]
  • 龙都·臻阅售楼电话63768888
  • 龙都·臻阅最新价格均价8200元/平方米[更新时间:2024/1/7]
楼盘最新动态 [更多楼盘信息]
河南楼市
龙都·臻阅详细介绍
  • 项目概况
  • 项目简介
  • 项目五证
  • 社区配套
  • 周边配套
  • 交房标准
  • 相关信息
  • ·项目名称:龙都·臻阅
  • ·项目地址:南阳市中州路与博望路交会处北500米路东
  • ·开发单位:南阳龙都地产
  • ·建筑形态:高层
  • ·物业类型:住宅
  • ·主宣传语:人文宛都 厚载城西
  • ·规划设计:
  • ·建筑单位:
  • ·监理单位:
  • ·总占地面积:19 亩
  • ·总建筑面积:45000 平方米
  • ·绿化率:41 %
  • ·容积率:2.49
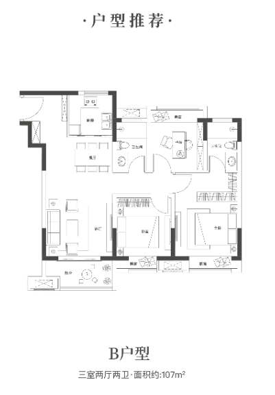
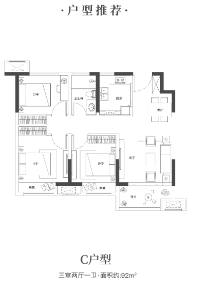
  • ·主力户型:92㎡-107㎡美好三房,约119㎡新奢四房
  • ·物业管理:龙都物业
  • ·收费标准:
人文宛都 厚载城西
龙都·臻阅项目位于中州路与博望路交会处北500米路东,总建筑面积约4.5万方。容积率约2.49,绿地率约41%,建筑密度约19%;目前项目所在片区,无论从教育医疗、还是购物休闲方面来说,都具备一定优势,不但居住舒适度较高,而且出行便利!
  • ·国有土地使用证:豫(2020)南阳市不动产权第0037211号
  • ·建设用地规划许可证:地字第411300202000072号
  • ·建设工程规划许可证:建字第411300202000122号
  • ·建筑工程施工许可证:411300202101150101
  • ·商品房预售许可证:(宛)房预售证第2021155号、054号、085号
拥享南阳市第一、第十一完全学校|9大智能系统,享都会菁英生活
毛坯
优惠信息
    活动报道
    价格档案
    日期价格说明
    • 2024-01-078200元/㎡--
    团购信息
    姓名户型面积日期
    龙都·臻阅图片欣赏
    效果图欣赏


      • 意向楼盘:意向户型:
      • 意向面积:意向房款:
      • 您的姓名:性    别:
      • 联系电话:您的QQ号:
      • 详细要求:(500字以内) 验证码:看不清?点一下
      *《互联网电子公告服务管理规定》*《全国人大常委会关于维护互联网安全的规定》
        不得利用本站危害国家安全、泄露国家秘密,不得侵犯国家社会集体的和公民的合法权益, 不得利用本站制作、复制和传播下列信息:
       ①.煽动抗拒、破坏宪法和法律、行政法规实施的; ②.煽动颠覆国家政权,推翻社会主义制度的;
       ③.煽动分裂国家、破坏国家统一的; ④.煽动民族仇恨、民族歧视,破坏民族团结的;
       ⑤.任何包含对种族、性别、宗教、地域内容等歧视的 ⑥.捏造或者歪曲事实,散布谣言,扰乱社会秩序的;
       ⑦.宣扬封建迷信、淫秽、色情、赌博、暴力、凶杀、恐怖、教唆犯罪的;
       ⑧.公然侮辱他人或者捏造事实诽谤他人的,或者进行其他恶意攻击的;
       ⑨.损害国家机关信誉的; ⑩.其他违反宪法和法律行政法规的。